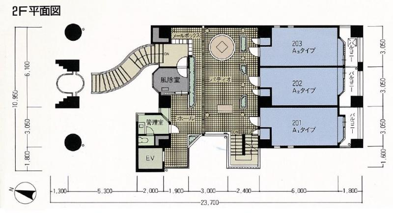
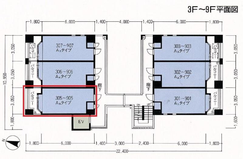
ピュアドーム高宮アーネスト 301

    高宮駅から徒歩6分、オートロック、バス・トイレ別室、人気の分譲タイプ

賃料 4.3 万円 管理費
敷金 なし 礼金 なし
間取り 1K 面積 18.3 ㎡
住所 福岡市南区大楠三丁目5-19
交通 西鉄天神大牟田線 高宮駅 470m 徒歩5分
西鉄天神大牟田線 西鉄平尾駅 1,250m 徒歩16分
西鉄天神大牟田線 大橋駅 1,668m 徒歩21分
種別 マンション 駐車場 なし
物件
構造
RC造 所在階
/階数
地上11階建 3階部分
間取り
内訳
K/洋6 築年数 1993年1月
主要
採光面
南東 引渡し 相談
設備 角部屋分譲タイプ外観タイル張りフローリング出窓収納スペースクロゼット自動ロックTVモニタ付きインターホン防犯カメラインターホン都市ガス電気給湯エレベータ駐輪場敷地内ゴミ置き場ゴミ置き場地上デジタルトイレバス・トイレ 別室シャワー温水洗浄便座洗面台洗濯機置場室内洗濯機置場浴室に窓暖房便座バス ありトイレに窓バルコニーペット不可全居室フローリング全居室洋室冷房暖房エアコン
備考
小学
校区
大楠小学校 中学
校区
高宮中学校
現況 空家 取引
態様
仲介
物件
番号
b1259984 有効
期限
2025年12月23日

ピュアドーム高宮アーネスト 301についてのお問い合わせ

店舗写真
店舗写真
  • 福岡市南区向野1-21-6
  • 免許番号:福岡県知事免許
  • (4)第16246号
店舗情報・アクセス