アイランドシティオーシャン&フォレストタワーレジデンスWEST 303

賃料 24.5 万円 管理費 なし
敷金 1ヶ月 礼金 2ヶ月
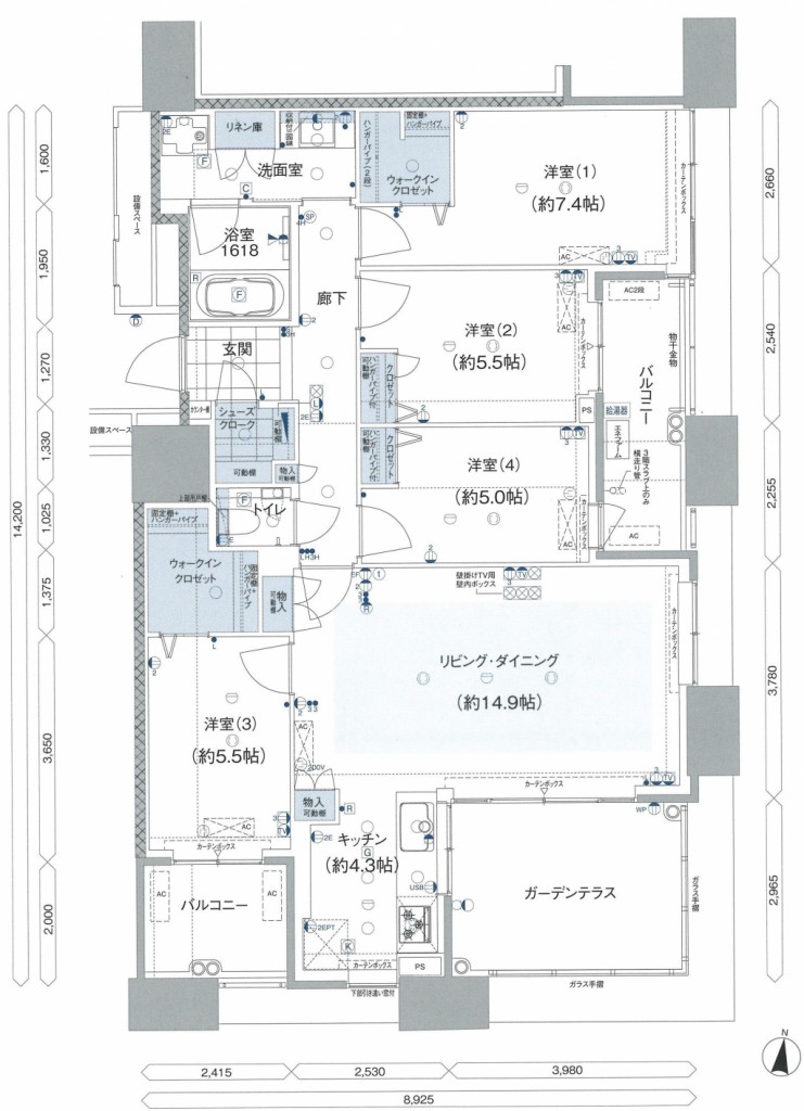
間取り 4LDK 面積 100 ㎡
住所 福岡市東区 香椎照葉六丁目 2-52
交通
種別 マンション 駐車場 空有
物件
構造
RC造 所在階
/階数
地上48階建 3階部分
間取り
内訳
LDK19.2/洋7.4/洋5.5/洋5 築年数 2022年12月
主要
採光面
引渡し
設備 省エネ給湯器日当り良好閑静住宅街分譲タイプ外観タイル張りコンシェルジュサービスシステムキッチン食器洗浄乾燥機3口コンロ以上ガスフローリング複層ガラス収納スペースウォークインクローゼット全居室収納玄関収納ウォークインクロゼット2ヶ所シューズボックス二人入居可 可保証人不要ディンプルキーTVモニタ付きインターホン防犯カメラインターホン都市ガス給湯エレベータ宅配ボックス駐輪場24時間換気システムエレベーター2基ゲストルーム車寄せ敷地内ゴミ置き場ゴミ置き場フィットネス施設免震構造来客用パーキングCATVインターネット使い放題追焚機能トイレタンクレストイレバス・トイレ 別室シャワー温水洗浄便座洗面所洗面台シャンプードレッサー洗濯機置場室内洗濯機置場浴室乾燥機独立洗面脱衣所脱衣所バス あり浴室暖房バルコニー2面バルコニーペット相談小型犬相談猫相談全居室フローリング床暖房
備考
小学
校区
中学
校区
現況 居住中 取引
態様
仲介
物件
番号
b2280760 有効
期限
2026年04月08日

アイランドシティオーシャン&フォレストタワーレジデンスWEST 303についてのお問い合わせ

店舗写真
店舗写真
  • 福岡市東区名島2-3-11
  • 免許番号:福岡県知事免許
  • (4)第16246号
店舗情報・アクセス

アイランドシティオーシャン&フォレストタワーレジデンスWEST 303