LaSante 照葉オーシャンテラス 204
| 賃料 | 14.3 万円 | 管理費 | なし |
|---|---|---|---|
| 敷金 | 2ヶ月 | 礼金 | 1ヶ月 |
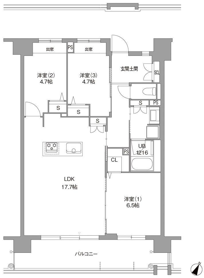
| 間取り | 3LDK | 面積 | 74.94 ㎡ |
| 住所 | 福岡市東区 香椎照葉一丁目 4-2 | ||
| 交通 | 西鉄貝塚線 香椎花園前駅 徒歩19分 | ||
| 種別 | マンション | 駐車場 | 空有 |
| 物件 構造 |
RC造 | 所在階 /階数 |
地上10階建 2階部分 |
| 間取り 内訳 |
LDK17.7/洋6.5/洋4.7/洋4.7 | 築年数 | 2025年2月 |
| 主要 採光面 |
南東 | 引渡し | |
| 設備 | 日当り良好閑静住宅街眺望良好システムキッチンカウンターキッチン浄水器食器洗浄乾燥機3口コンロ以上ガスフローリング収納スペース全居室収納玄関収納シューズボックス保証人不要ダブルロックキーTVモニタ付きインターホン防犯カメラインターホン都市ガス給湯エレベータ宅配ボックス駐輪場24時間換気システムエレベーター2基車寄せ敷地内ゴミ置き場ゴミ置き場バイク置場(屋外)CATVインターネット使い放題追焚機能トイレバス・トイレ 別室シャワー温水洗浄便座洗面所洗面台洗濯機置場室内洗濯機置場浴室乾燥機独立洗面脱衣所脱衣所バス ありバルコニーペット相談小型犬相談振分LDK15畳以上全居室フローリングアルコープエアコン | ||
| 備考 | |||
| 小学 校区 |
中学 校区 |
||
| 現況 | 空家 | 取引 態様 |
仲介 |
| 物件 番号 |
b2301326 | 有効 期限 |
2026年04月08日 |