ダイアパレス赤坂けやき通り 1105
| 賃料 | 20.3 万円 | 管理費 | 7,000円 |
|---|---|---|---|
| 敷金 | 1ヶ月 | 礼金 | 2ヶ月 |
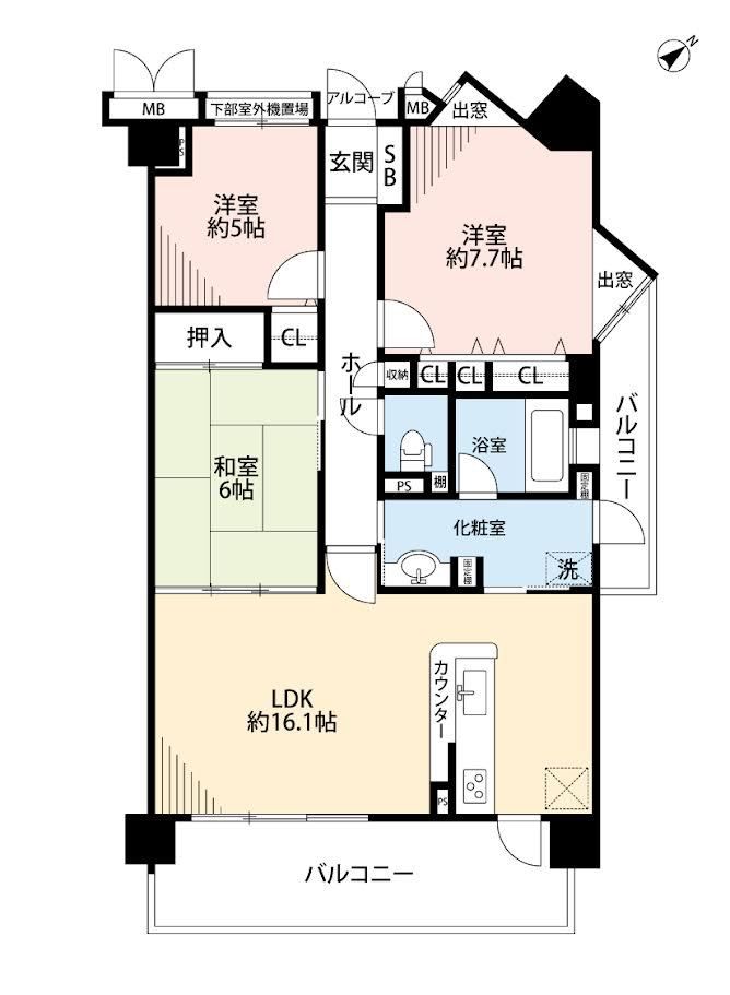
| 間取り | 3LDK | 面積 | 78.63 ㎡ |
| 住所 | 福岡市中央区 赤坂三丁目 8-31 | ||
| 交通 |
福岡市営地下鉄七隈線 桜坂駅 徒歩12分 福岡市営地下鉄空港線 赤坂駅 徒歩12分 福岡市営地下鉄空港線 大濠公園駅 徒歩19分 |
||
| 種別 | マンション | 駐車場 | 空有 |
| 物件 構造 |
SRC造 | 所在階 /階数 |
地上15階建 11階部分 |
| 間取り 内訳 |
築年数 | 2000年12月 | |
| 主要 採光面 |
南東 | 引渡し | |
| 設備 | 角部屋システムキッチンカウンターキッチン3口コンロ以上ガス収納スペースシューズボックスディンプルキーTVモニタ付きインターホンインターホン都市ガス給湯エレベータ宅配ボックス駐輪場CATVBS端子トイレバス・トイレ 別室シャンプードレッサー洗濯機置場室内洗濯機置場独立洗面脱衣所脱衣所バス ありバルコニー2面バルコニーペット相談小型犬相談猫相談和室有エアコン | ||
| 備考 | |||
| 小学 校区 |
中学 校区 |
||
| 現況 | 空家 | 取引 態様 |
仲介 |
| 物件 番号 |
b2301910 | 有効 期限 |
2026年04月08日 |